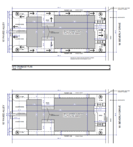
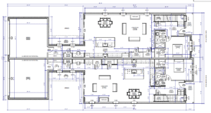
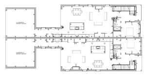
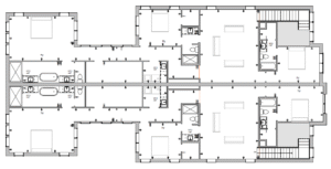
Dallas, TX
3719-3721 West Beverly Dr.
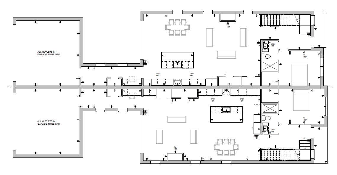
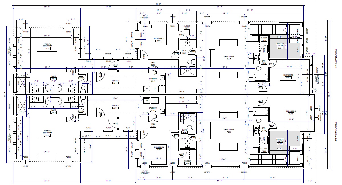
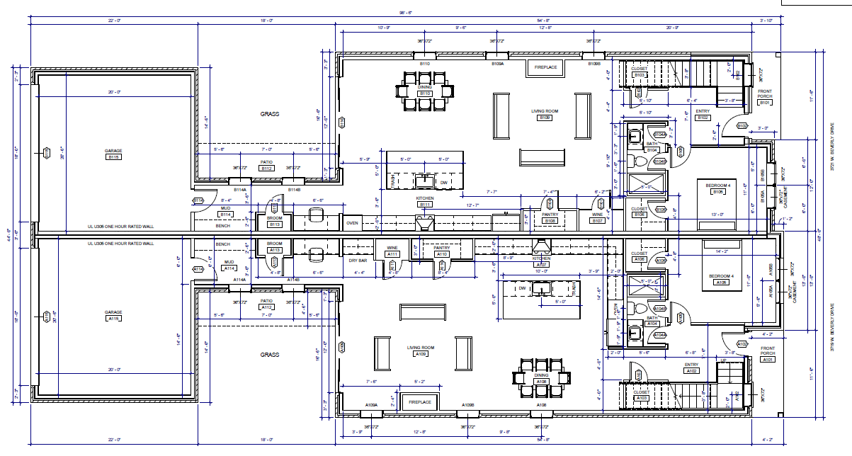
IRACA Group’s latest development at 3719–3721 West Beverly Drive, Dallas, Texas (Highland Park) stands as a benchmark of modern luxury and architectural finesse, nestled in one of Dallas’s most prestigious locales. Designed to reflect the company’s core values of sophistication, precision, and innovation, this premium residence combines traditional estate grandeur with cutting-edge amenities and sustainable construction methods.
Award Winning
Sustainable Designs
Highly Efficient
5 Star Rating
Sustainability
Sustainability Is The Commitment To Keeping Clients Healthy & Safe
We Follow Best Practices
- Modern Technology
- Sustainable Materials
- Projects Always Finish On Time
- Custom Designs
IRACA USA
Dallas Office
Were Here To Help!













